# テーマ「上品で今の時代でも古くならないクラシカルな美しさ」を活かしたリノベーション
築48年のご自宅を、新しさで覆い隠すのではなく、
長い年月の中で育まれてきた美しさを土台に、再設計しました。
木目や建具の風合い、庭へ視線が抜ける低くたっぷりとした窓のプロポーション。
どれも今同じものをつくろうとしても再現できない要素が、この家の佇まいを形づくっていました。
その美しさを損なうことなく引き立てながら、
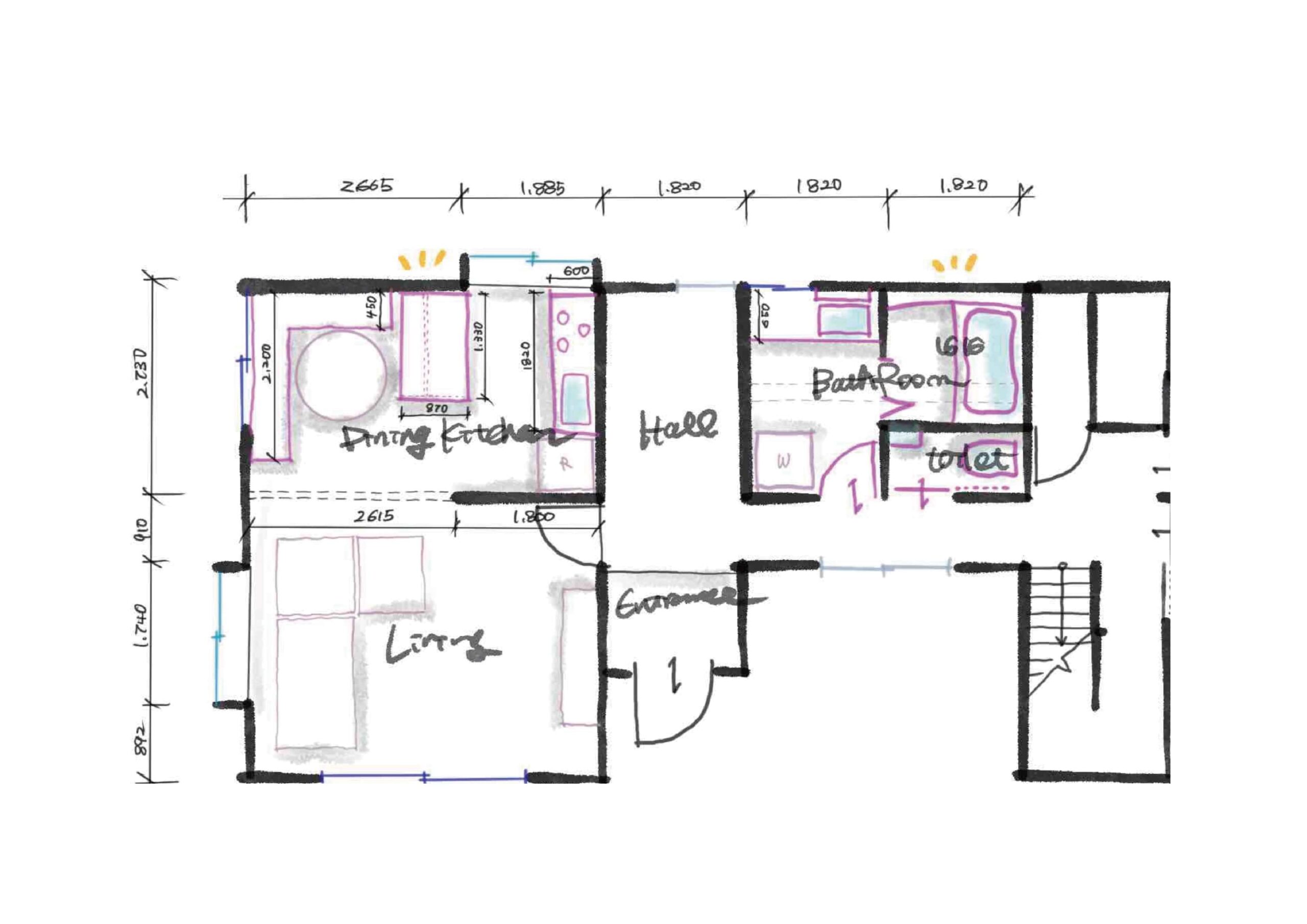
LDK・システムキッチン・洗面室・浴室・トイレを
今の暮らしに必要な機能、サイズ、導線へと整えました。
誰かのためのモデル空間ではなく、
その家が持っている個性と、施主様の暮らしが自然に溶け合う住まいへ。
上品で、今の時代でも古くならない、
クラシカルな美しさを活かしたリノベーションです。
お客様のご希望
・帰った時にホッとできるLDK空間にしたい
・寒くて使いづらかった浴室やトイレを、温かくしたい
・洗面はホテルや店舗のようにスタイリッシュな空間にしたい
リノベーションを考え始めたきっかけは、
古くて寒いタイル風呂や、使いづらいキッチンを
見直したいという思いから。
当初は、「壁はすべて白に」「家具も白で揃える」といったイメージを持たれており、
既存の壁やもともとお持ちになられていたレトロな家具には、あまり意識が向いてなかったそうです。
しかし、【リノベーションプロジェクト第1弾】の見学会でデザインの話を重ねる中で、
見慣れた家の中に、すでにある美しさに気づかれたとのこと。
ご希望を聞き、
どんな提案をしたの?
ご自宅を拝見すると、
・庭へ視線が抜ける低くたっぷりとした窓のプロポーション
・柔らかく落ち着いた木の質感
・庭と室内のつながりが織りなす深みのある陰影
そこには、この家だけが持つクラシカルな味わいが随所に残っていました。
この佇まいを新築のような白一色で覆ってしまうと、
この家の魅力である空間の良さを、
かえって古めかしく見せてしまいます。
そこで、既存を壊すのではなく、
「どうすれば今の暮らしの中で美しく見えるか」を軸に、構造・色彩・素材・照明・レイアウトを再設計しました。
施主様が言葉にされていた「ホテルのように」「店舗のように」などの
好きなデザインの要素を汲み取りながら、住まいとしての落ち着きと、非日常が共存する水まわりをご提案しました。




Make myself
comfortable design
暮らしの風景をつくるレイアウト
ダイニングの造作ベンチに座ったとき、
お気に入りのリーン・ロゼのソファ越しに
庭の景色が見えるよう、家具の配置を計画。
映えではなく、日常の視線が最も心地良くなる設計を心がけています。



施主様がリーン・ロゼのソファに身を預けてお酒を飲みながら、プロジェクターで映画や野球を楽しむ時間。
知人を招いて、ピアノやギターを奏でる時間。
施主様の暮らしの場面に寄り添いながら、レイアウトしました。
日常の導線にアイポイントを

買い物から帰った時に、最初に視界に入っていた
使われてない勝手口はなくし、絵を飾ることで、
家に帰った瞬間に、気持ちが整う景色へと変えています。
生活シーンの視点を大切にし、
日常の導線にアイポイントをちりばめ、
日常の中で、ふと手を止めて見惚れるような時間が
生まれる住まいを目指しました。
キッチンは暮らしに合わせてコンパクトに

広さを削るのではなく、施主様が心地よく動ける
必要な部分だけを抽出したキッチンへ。
どこに何があるかすぐ分かり、必要なものを見極められるサイズ感に整えています。
便利さの最大化ではなく、「自分にとってちょうどいい」を優先した設計です。
ホテルのような水まわり


洗面室は、異なる色や素材を用いながらも、
色彩のトーンと全体のバランスを調整することで、
落ち着いた統一感をつくっています。
円形ミラーのやわらかな光と
ペンダントライトの光が壁面に重なり、
光と影の演出によって、空間に立体感と落ち着いた雰囲気をもたらしています。


トイレは上下で貼り分けたクロスと間接照明で
小空間にもメリハリを持たせ、圧迫感のない空間にしています。
浴室は、寒さの原因となっていた在来工法のタイル風呂から、断熱性の高いユニットバスへと刷新しました。



長い時間を過ごしてきたものが、
今の暮らしの中でも自然に、美しく感じられること。
見慣れた景色の中に、その家ならではの美しさが静かにに残り、
「やっぱりこの家はいい」と思える。
そんな時間の積み重なりを受け継ぐリノベーションとなりました。
理想を諦めず、家づくりの選択肢をグッと広げます。
Flow - 家づくりの流れ
家づくりは、土地・物件探しとプラン作り、融資関係の手続きまで、全体のバランスをみて進めていくことが大切となります。
資金関係では、土地・建物・解体費や地盤調査と家の建築費・家具やカーテンの購入費、そして不動産取得の手数料など、トータルで考えないと最後の最後で家具が買えない、とか、途中に無理が出た、とか、逆に、まだ余裕があったのだから、あの時性能を上げればよかった、などとなることもあるため、最初の資金計画から一緒に考えていければと思います。

